タイル門柱と折半カーポートが重厚感のある新築シンプル オープン外構
プラン内容 No.3352
※データは見積当時のものです
- 見積参考価格
- 465 万円
- 工事面積
- 172m 2
- 工事種別
- 新築外構
- 地形
- 変形
- 方位
- 西
- 車の台数
- 3台以上
- 登録日
- 2025-09-27
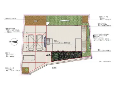
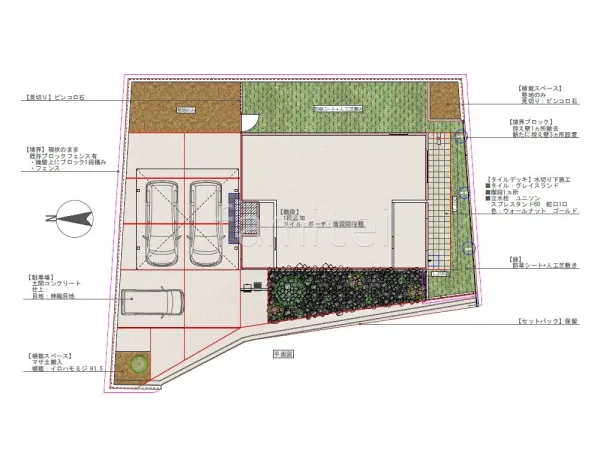
イメージパース・図面









コメント
大判タイル タカショー セラレバンテを使用したタイル門柱を門まわりに設け、モダンで高級感のあるエントランスを演出します。 住宅前にはロックガーデンと植栽を配置し、自然石の風合いが植栽と調和して立体的な景観を生み出します。 駐車スペースには耐久性に優れた2台用カーポート YKKAP ジーポートProを採用し、雨や雪から車をしっかり保護します。 お庭には人工芝とタイルデッキを組み合わせ、メンテナンス性と快適性を両立した憩いの空間を作りました。









